Hebesitz für Behinderte - hydraulisch 1000 mm
9.231,73 €
Haben Sie Fragen zu diesem Produkt?
Gern beraten wir Sie in einem persönlichem Gespräch.
Anfrage Beratungstermin
Kompetente Beratung und individuelle Planung - Für Ihren persönlichen Traumpool!
Wir unterstützen und beraten Sie in all Ihren Wünschen , angefangen bei der Wahl des passenden Filtermaterials, bis hin zur Planung und Umsetzung Ihres Traumpools. Eine ausführliche Beratung steht dabei immer im Vordergrund, und bildet die Basis unserer Leistung. Damit Ihre persönlichen Vorstellungen und Anforderungen bestens umgesetzt werden, nehmen wir im Gespräch mit Ihnen und einer Besichtigung vor Ort Ihre Wünsche und Ideen auf und planen für Sie kompetent und individuell.
Unsere Fachberater mit umfassenden Produktkenntnissen im Schwimmbadbau und Zubehör besuchen Sie gern persönlich vor Ort.
Jetzt unverbindlich einen Beratungstermin zu Hause anfragen!
Die Beratungskosten werden bei einem Folgeumsatz ab 2500 Euro brutto bis zu 3 Jahren zurückerstattet. Das Angebot richtet sich an Kunden in Baden-Württemberg, Berlin, Brandenburg und Sachsen. Andere Bundesländer auf Anfrage. Das Angebot richtet sich nur an Endkunden für eine Beratungsdauer von bis zu 1,5 Stunden.
Bitte beachten Sie, dass wir bei einer Beratung bei Ihnen zu Hause einen Pauschalbetrag in Höhe von 149 Euro inkl. MwSt. berechnen.
Hebesitz für Behinderte - hydraulisch 1000 mm
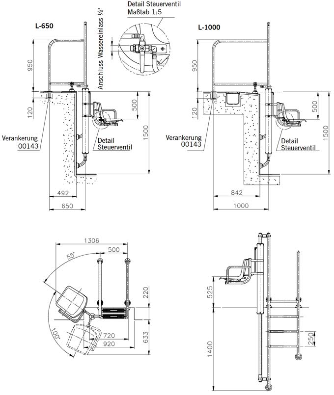
Ermöglichen Sie einen barrierefreien und sicheren Zugang zu Ihrem privaten Schwimmbad mit dem hydraulischen Hebesitz für Behinderte. Dieser Lift wurde speziell für therapeutische Schwimmbecken und private Skimmerbecken entwickelt, um Menschen mit eingeschränkter Mobilität den Ein- und Ausstieg ins Wasser so komfortabel und würdevoll wie möglich zu gestalten. Er stellt eine intelligente Alternative zu herkömmlichen Leitern oder Treppen dar und integriert technische Raffinesse mit hochwertigen Materialien.
Der Betrieb erfolgt rein hydraulisch über den Wasserdruck, was eine umweltfreundliche Nutzung ohne direkten Stromanschluss am Beckenrand ermöglicht. Durch die durchdachte Konstruktion mit integrierter Leiter bietet das System zudem eine optimale Unterstützung für Betreuungspersonen, die den Badegast begleiten. Sicherheit, Funktionalität und Langlebigkeit stehen bei diesem CE-zertifizierten Produkt im Mittelpunkt.
Vorteile des hydraulischen Poollifts
- Autarker Betrieb: Funktioniert rein hydraulisch (Wasserdruck), kein Stromanschluss direkt am Lift nötig.
- Integrierte Unterstützung: Seitliche Leiter ermöglicht Hilfspersonen den direkten Zugang zum Badegast.
- Einfache Bedienung: Steuerung des Hebens und Senkens über gut erreichbare Bedienelemente.
- Hochwertige Materialien: Robuste Konstruktion aus poliertem Edelstahl V4A für lange Haltbarkeit.
- Flexibilität: Einstellbare Stützvorrichtungen zur Anpassung an verschiedene Beckenformen (Skimmerbecken).
- Sicherheit: CE-Zertifizierung und stabile Verankerung mittels Einbauhülsen.
Material und Beschaffenheit
Die tragende Rohrkonstruktion des Lifts besteht aus hochwertigem Edelstahl V4A (AISI 316) mit einem Holmdurchmesser von 43 mm. Die Oberfläche ist poliert, was nicht nur edel aussieht, sondern auch die Pflege erleichtert. Der Sitz selbst ist aus strapazierfähigem Kunststoff gefertigt, der angenehm auf der Haut liegt und beständig gegen Schwimmbadchemie ist. Edelstahl V4A zeichnet sich durch eine hohe Korrosionsbeständigkeit in Frischwasserbecken aus.
Wichtiger Hinweis zur Wasserpflege:
Bitte beachten Sie, dass Bauteile aus Edelstahl V4A nur bedingt für Salzwasser geeignet sind. Bei Einsatz von Salzelektrolyse-Anlagen (Salzgehalt > 3-4 g/l) oder Hydrolyse (> 1,5 g/l) kann es zu Korrosionsschäden kommen. Für solche Becken werden Komponenten aus Titan oder Bronze empfohlen.
Anwendung und Funktion
Dieser Hebesitz ist ideal für private Pools ohne Überlaufrinne (Skimmerbecken). Die Funktionsweise ist ebenso simpel wie genial: Ein Wasserdruck von 3 bis 5 bar (kg/cm²) treibt den Kolben an.
Zum Absenken (Hinunter) betätigt der Benutzer einen seitlichen Hebel. Das Wasser entweicht aus dem Kolben in das Schwimmbecken, und der Sitz gleitet sanft nach unten. Zum Anheben (Hinauf) wird das Ventil erneut betätigt, wodurch frisches Wasser aus der Leitung den Kolben füllt und den Sitz in die Ausgangsposition zurückbringt. Der Wasserverbrauch liegt dabei bei sparsamen ca. 7 Litern pro Zyklus.
Technische Daten
| Merkmal | Eigenschaft |
|---|---|
| Material Konstruktion | Edelstahl V4A (AISI 316), poliert |
| Holmdurchmesser | 43 mm |
| Antriebsart | Hydraulisch (Wasserdruck) |
| Erforderlicher Wasserdruck | 3,0 - 5,0 bar (kg/cm²) |
| Max. Tragkraft | 115 kg |
| Drehbereich | 100° |
| Wasserverbrauch | ca. 7 Liter pro Zyklus |
| Befestigung | 2 Metalleinbauhülsen (inklusive) |
| Geeigneter Beckentyp | Skimmerbecken (ohne Überlaufrinne) |

Fragen & Antworten zu Hebesitz für Behinderte
- Wie wird der Hebesitz montiert?
Die Installation erfolgt über zwei Metalleinbauhülsen, die fest im Boden verankert (einbetoniert) werden müssen. Zusätzlich sorgen zwei einstellbare vordere Stützen für Stabilität am Beckenrand. - Benötige ich einen Stromanschluss?
Nein, der Lift arbeitet rein hydraulisch. Es ist jedoch ein Anschluss an die Hauswasserleitung oder eine entsprechende Pumpe notwendig, die einen konstanten Druck von mindestens 3,0 bar liefert. - Kann ich den Lift bei Salzwasserpools nutzen?
Edelstahl V4A ist nicht dauerhaft beständig gegen hohe Salzkonzentrationen. Bei Werten über 3-4 g/l (Elektrolyse) wird von der Nutzung abgeraten, da Korrosion auftreten kann. - Wie schwer darf die Person maximal sein?
Die maximale Tragkraft (Hubfähigkeit) des Lifts beträgt 115 kg. - Ist die Installation durch einen Laien möglich?
Aufgrund der notwendigen Verankerung im Boden und des Wasseranschlusses empfehlen wir die Installation durch einen Fachbetrieb oder einen erfahrenen Handwerker. - Was passiert mit dem verbrauchten Wasser?
Beim Absenken fließt das Wasser aus dem Zylinder direkt in das Schwimmbecken. Es handelt sich um sauberes Leitungswasser, das den Wasserstand minimal erhöht.
Sorgen Sie jetzt für mehr Barrierefreiheit in Ihrem Pool und bestellen Sie den hydraulischen Hebesitz bequem online!
Fluidra Deutschland GmbH
Bauhofstr. 18d
63762 Großostheim
www.astralpool.com/de/
Sicherheitstechnische Angaben in der Bedienungsanleitung und Anleitungsblättern, die dem Schwimmbecken beigefügt sind.
Vor dem Bau und der Benutzung des Schwimmbeckens müssen sämtliche Informationen in der Betriebsanleitung sorgfältig gelesen und verstanden werden. Warnhinweise, Anleitungen und Sicherheitsrichtlinien umfassen einige allgemeine Risiken in Bezug auf Freizeitbeschäftigung im Wasser, sie können jedoch nicht sämtliche Risiken und Gefährdungen in allen Fällen behandeln. Bei jeglicher Aktivität im Wasser wird Vorsicht, gesunder Menschenverstand und gutes Urteilsvermögen walten gelassen. Diese Angaben und Anleitungen müssen für die spätere Nutzung aufbewahrt werden.
Sicherheit von Nichtschwimmern:
• Es ist jederzeit eine ständige, aktive und wachsame Beaufsichtigung schwacher Schwimmer und Nichtschwimmer durch eine sachkundige erwachsene Aufsichtsperson erforderlich (es wird daran erinnert, dass das größte Risiko des Ertrinkens bei Kindern unter 5 Jahren besteht).
• Es wird eine sachkundige erwachsene Person bestimmt, die das Becken überwacht, wenn es benutzt wird.
• Schwache Schwimmer oder Nichtschwimmer sollten persönliche Schutzausrüstung tragen, wenn sie ins Schwimmbecken gehen.
• Wenn das Schwimmbecken nicht benutzt oder überwacht wird, werden sämtliche Spielsachen aus dem Schwimmbecken und seiner Umgebung entfernt, um zu verhindern, dass Kinder davon angezogen werden.
Sicherheitsvorrichtungen:
• Es wird empfohlen, eine Absperrung zu errichten (und sämtliche Türen und Fenster zu sichern, sofern zutreffend), um unberechtigten Zutritt zum Schwimmbecken zu vermeiden.
• Absperrungen, Beckenabdeckungen, Alarmanlagen oder ähnliche Sicherheitsvorrichtungen sind sinnvolle Hilfsmittel, ersetzen jedoch keine ständige und sachkundige Überwachung durch erwachsene Personen.
Sicherheitsausrüstung:
• Es wird empfohlen, Rettungsausrüstung (z. B. einen Rettungsring, Sanikasten) in der Nähe des Beckensaufzubewahren.
• Ein funktionierendes Telefon und eine Liste von Notrufnummern werden in der Nähe des Schwimmbeckens aufbewahrt.
Sichere Nutzung des Schwimmbeckens:
• Sämtliche Nutzer, insbesondere Kinder, werden dazu ermuntert, schwimmen zu lernen.
• Jeder der ein Schwimmbecken benutzt soll Erste Hilfe Maßnahmen (Herz-Lungen-Wiederbelebung) erlernen und diese Kenntnisse regelmäßig auffrischen. Das kann bei einem Notfall einen lebensrettenden Unterschied ausmachen.
• Sämtliche Beckenbenutzer, einschließlich Kinder, anweisen, was in einem Notfall zu tun ist.
• Niemals in flaches Wasser springen. Das kann zu schweren Verletzungen oder zum Tode führen.
• Das Schwimmbecken nicht benutzen, wenn man unter dem Einfluss von Alkohol, Drogen, Betäubungsmitteln, Medikamenten oder anderen Substanzen steht, welche die Fähigkeit zur sicheren Nutzung des Beckens beeinträchtigen können.
• Beckenabdeckungen vor dem Betreten des Schwimmbeckens vollständig von der Wasseroberfläche entfernen, wenn sie verwendet werden.
• Die Nutzer des Schwimmbeckens werden vor durch das Wasser verbreiteten Krankheiten geschützt, indem das Wasser stets aufbereitet und hygienisch unbedenklich gehalten wird. Die Richtlinien zur Wasseraufbereitung in der Gebrauchsanleitung werden zu Rate gezogen und eingehalten.
• Chemikalien (z. B. Produkte für die Wasseraufbereitung, Reinigung oder Desinfektion) außerhalb der Reichweite von Kindern aufbewahren.
• Abnehmbare Leitern sind auf einer waagerechten Fläche anzuordnen.
• Die nachstehenden nachstehenden Sicherheitszeichen müssen verwendet werden:
| Die Zeichen (in Bild B.1a und Bild B.1.b) sind an einer gut sichtbaren Stelle innerhalb von 2 m in der Nähe des Schwimmbeckens anzubringen. |
![]() ![]() |
| Es wird empfohlen, das Zeichen (in Bild B.2) an einer gut sichtbaren Stelle innerhalb von 2 m in der Nähe des Schwimmbeckens anzubringen. |
![]() |


