



















Astral Advance ND Gegenstromanlage
Haben Sie Fragen zu diesem Produkt?
Gern beraten wir Sie in einem persönlichem Gespräch.
AstralPool Advance ND Gegenstromanlage
Der letzte Stand der Technik, das TOP Modell der Gegenstromanlagen in neuem Modernen Design das zu jedem Schwimmbad passt.
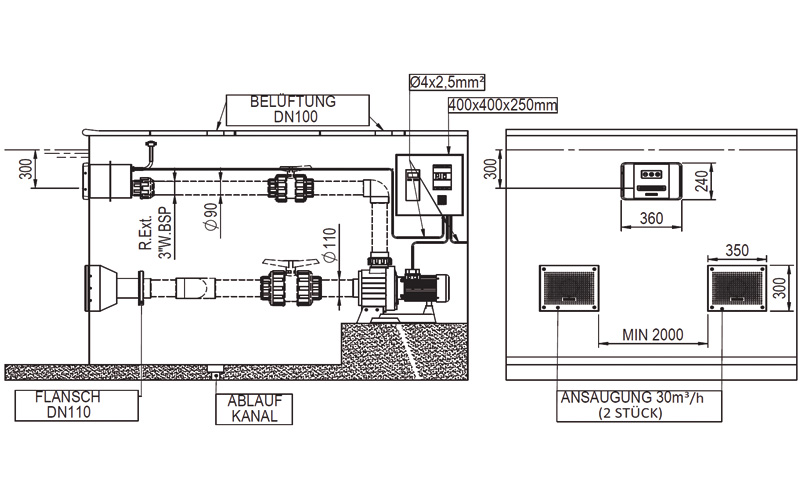
Die neu Designten seitlichen Lamellen bringen Innovationen, eine große Auswahl an Funktionen und Ebenen, Düsenstock mit polierter Edelstahlblende V4A. Luft-Wasser-Düse mit verstellbarem Durchfluss. Luft-Wasser-Rücklaufdüse, Durchfluss bis maximal 105 m³ / h bei 6mWs.
Die Ansaugung erfolgt über den Düsenstock. Inklusive Haltegriff, Edelstahleinbauteil V4A, 4,0 kW Pumpe und PN-Schaltkasten.
Die Innovation der Gegenstromanlagen mit Top Leistung. Düsenstock mit polierter Edelstahlblende V4A, beleuchtete piezoelektrische Taster, Luft-Wasser-Düse, Durchfluss verstellbar durch anpassen der Pumpengeschwindigkeit. Die Ansaugung erfolgt über zwei Ansauggitter, aus poliertem Edelstahl V4A, mit einer Kapazität von je 30 m³/h. Maximale Durchflussgeschwindigkeit 12 m/s am Auslass; 2,4 m/s in 1 m Entfernung; 1,7 m/s in 1,5 m Entfernung und 1,5 m/s in 2 m Entfernung. Inklusive Edelstahleinbauteil V4A, zwei Ansauggitter inklusive Betoneinbauteil (nur bei Ausführung für Folienbecken), 4,0 kW Pumpe (400 V), Schaltkasten und Steuerbox.
• Gegenstromschwimmanlage mit polierter Frontabdeckung aus Edelstahl AISI 316
• Beleuchteter piezoelektrischer Druckknopf
• Sauggitter für 30 m³ / h aus poliertem AISI 316 Edelstahl (2 Stück)
• 4,0 kw Pumpe 3 phasen ~ 400 V
• Incl. Schaltschrank
• Luft-Wasser-Rücklaufdüse, Durchflussmenge von 25-50 m³ / h, einstellbar incl. eingebautem Absaugsystem
• Maximale Durchflussraten von 12 m / s am Auslass der Einheit, 2,4 m / s in 1 m Entfernung, 1,7 m / s 1,5 m entfernt und 1,5 m / s 2 m entfernt
Lieferumfang
Edelstahleinbauteile
Schaltkasten
Pumpe
Modell: | Advance ND |
---|
Fluidra Deutschland GmbH
Bauhofstr. 18d
63762 Großostheim
www.astralpool.com/de/
Sicherheitstechnische Angaben in der Bedienungsanleitung und Anleitungsblättern, die dem Schwimmbecken beigefügt sind.
Vor dem Bau und der Benutzung des Schwimmbeckens müssen sämtliche Informationen in der Betriebsanleitung sorgfältig gelesen und verstanden werden. Warnhinweise, Anleitungen und Sicherheitsrichtlinien umfassen einige allgemeine Risiken in Bezug auf Freizeitbeschäftigung im Wasser, sie können jedoch nicht sämtliche Risiken und Gefährdungen in allen Fällen behandeln. Bei jeglicher Aktivität im Wasser wird Vorsicht, gesunder Menschenverstand und gutes Urteilsvermögen walten gelassen. Diese Angaben und Anleitungen müssen für die spätere Nutzung aufbewahrt werden.
Sicherheit von Nichtschwimmern:
• Es ist jederzeit eine ständige, aktive und wachsame Beaufsichtigung schwacher Schwimmer und Nichtschwimmer durch eine sachkundige erwachsene Aufsichtsperson erforderlich (es wird daran erinnert, dass das größte Risiko des Ertrinkens bei Kindern unter 5 Jahren besteht).
• Es wird eine sachkundige erwachsene Person bestimmt, die das Becken überwacht, wenn es benutzt wird.
• Schwache Schwimmer oder Nichtschwimmer sollten persönliche Schutzausrüstung tragen, wenn sie ins Schwimmbecken gehen.
• Wenn das Schwimmbecken nicht benutzt oder überwacht wird, werden sämtliche Spielsachen aus dem Schwimmbecken und seiner Umgebung entfernt, um zu verhindern, dass Kinder davon angezogen werden.
Sicherheitsvorrichtungen:
• Es wird empfohlen, eine Absperrung zu errichten (und sämtliche Türen und Fenster zu sichern, sofern zutreffend), um unberechtigten Zutritt zum Schwimmbecken zu vermeiden.
• Absperrungen, Beckenabdeckungen, Alarmanlagen oder ähnliche Sicherheitsvorrichtungen sind sinnvolle Hilfsmittel, ersetzen jedoch keine ständige und sachkundige Überwachung durch erwachsene Personen.
Sicherheitsausrüstung:
• Es wird empfohlen, Rettungsausrüstung (z. B. einen Rettungsring, Sanikasten) in der Nähe des Beckensaufzubewahren.
• Ein funktionierendes Telefon und eine Liste von Notrufnummern werden in der Nähe des Schwimmbeckens aufbewahrt.
Sichere Nutzung des Schwimmbeckens:
• Sämtliche Nutzer, insbesondere Kinder, werden dazu ermuntert, schwimmen zu lernen.
• Jeder der ein Schwimmbecken benutzt soll Erste Hilfe Maßnahmen (Herz-Lungen-Wiederbelebung) erlernen und diese Kenntnisse regelmäßig auffrischen. Das kann bei einem Notfall einen lebensrettenden Unterschied ausmachen.
• Sämtliche Beckenbenutzer, einschließlich Kinder, anweisen, was in einem Notfall zu tun ist.
• Niemals in flaches Wasser springen. Das kann zu schweren Verletzungen oder zum Tode führen.
• Das Schwimmbecken nicht benutzen, wenn man unter dem Einfluss von Alkohol, Drogen, Betäubungsmitteln, Medikamenten oder anderen Substanzen steht, welche die Fähigkeit zur sicheren Nutzung des Beckens beeinträchtigen können.
• Beckenabdeckungen vor dem Betreten des Schwimmbeckens vollständig von der Wasseroberfläche entfernen, wenn sie verwendet werden.
• Die Nutzer des Schwimmbeckens werden vor durch das Wasser verbreiteten Krankheiten geschützt, indem das Wasser stets aufbereitet und hygienisch unbedenklich gehalten wird. Die Richtlinien zur Wasseraufbereitung in der Gebrauchsanleitung werden zu Rate gezogen und eingehalten.
• Chemikalien (z. B. Produkte für die Wasseraufbereitung, Reinigung oder Desinfektion) außerhalb der Reichweite von Kindern aufbewahren.
• Abnehmbare Leitern sind auf einer waagerechten Fläche anzuordnen.
• Die nachstehenden nachstehenden Sicherheitszeichen müssen verwendet werden:
Die Zeichen (in Bild B.1a und Bild B.1.b) sind an einer gut sichtbaren Stelle innerhalb von 2 m in der Nähe des Schwimmbeckens anzubringen. |
![]() ![]() |
Es wird empfohlen, das Zeichen (in Bild B.2) an einer gut sichtbaren Stelle innerhalb von 2 m in der Nähe des Schwimmbeckens anzubringen. |
![]() |